solgt
solgt
Nr. Bjertvej 109, Nr Bjert, 6000 Kolding
Naturskønt beliggende nyere ejendom lige uden for bygrænsen til Nr. Bjert. Jordtilliggende på i alt
2,3 ha. Hovedsageligt beliggende lige ved ejendommen og grænsende op til lille sø og med flot
udsigt til mark og skov. Gå-/cykelafstand til indkøb i Nr. Bjert, Drejens Natursti og cykelsti til Lyshøj
Skole, fitness, Trapholt m.m.
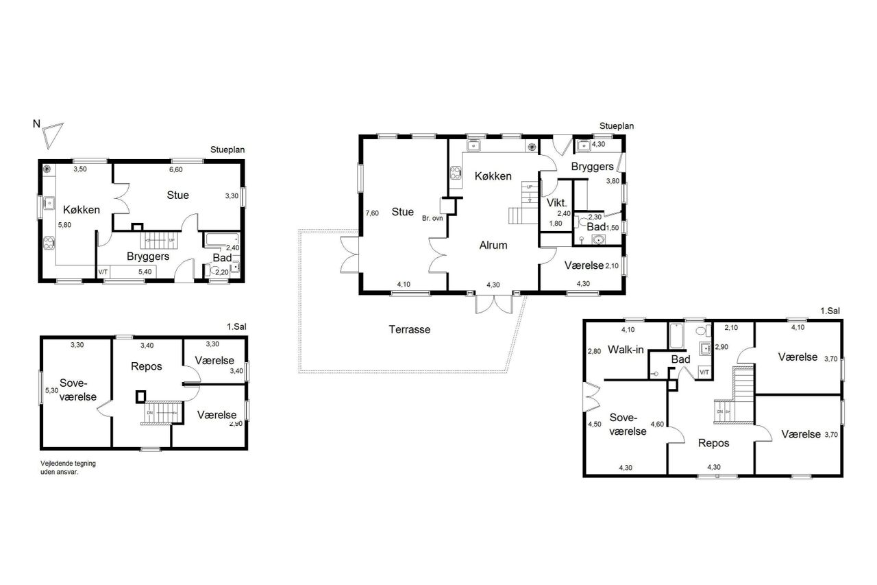
Ejendommen består af nyt 222 m2 stuehus fra 2012, det oprindelige stuehus på 125 m2 samt 55
m2 anneks/minilejlighed i nyere og god stand - i alt 402 m2 registreret beboelse. Med diverse
udhuse, staldanlæg og ridebane, er der rig mulighed for hestehold, B&B, boligudlejning,
hjemmearbejdsplads og det perfekte sted at bo, for den aktive familie.
Bemærk - vandværksvand, offentlig kloakering samt tilsluttet fjernvarmen.
Det nye stuehus indeholder et stort og centralt køkken alrum med viktualierum og brændeovn med
gennemgående kig til flammerne fra både alrum og opholdsstuen, hvor der er udsigt til markerne.
Fra alrum og stue er der udgang til ugeneret terrasse med mulighed for aftensol. Stort bryggers med
vask, skabe, teknikskab og bagudgang og derudover er der i underetagen badeværelse med brus og
et ekstra børneværelse/kontor.
1. salen er indrettet med to store børneværelser, et lækkert badeværelse samt forældre
soveværelse med stort walk-in. Overalt hvide gipslofter og gulv består af klinker eller trægulve med
gulvvarme.
En spændende og sjælden udbudt ejendom med et væld af muligheder i forhold til fritid og/eller
erhverv.
Naturskønt beliggende nyere ejendom lige uden for bygrænsen til Nr. Bjert. Jordtilliggende på i alt
2,3 ha. Hovedsageligt beliggende lige ved ejendommen og grænsende op til lille sø og med flot
udsigt til mark og skov. Gå-/cykelafstand til indkøb i Nr. Bjert, Drejens Natursti og cykelsti til Lyshøj
Skole, fitness, Trapholt m.m.
Ejendommen består af nyt 222 m2 stuehus fra 2012, det oprindelige stuehus på 125 m2 samt 55
m2 anneks/minilejlighed i nyere og god stand - i alt 402 m2 registreret beboelse. Med diverse
udhuse, staldanlæg og ridebane, er der rig mulighed for hestehold, B&B, boligudlejning,
hjemmearbejdsplads og det perfekte sted at bo, for den aktive familie.
Bemærk - vandværksvand, offentlig kloakering samt tilsluttet fjernvarmen.
Det nye stuehus indeholder et stort og centralt køkken alrum med viktualierum og brændeovn med
gennemgående kig til flammerne fra både alrum og opholdsstuen, hvor der er udsigt til markerne.
Fra alrum og stue er der udgang til ugeneret terrasse med mulighed for aftensol. Stort bryggers med
vask, skabe, teknikskab og bagudgang og derudover er der i underetagen badeværelse med brus og
et ekstra børneværelse/kontor.
1. salen er indrettet med to store børneværelser, et lækkert badeværelse samt forældre
soveværelse med stort walk-in. Overalt hvide gipslofter og gulv består af klinker eller trægulve med
gulvvarme.
En spændende og sjælden udbudt ejendom med et væld af muligheder i forhold til fritid og/eller
erhverv.
Mæglerhuset Kokborg & Co.
Hvordan ser din drømmebolig ud
Tilmeld dig vores køberkartotek og få besked, når vi får en bolig til salg, der matcher dine kriterier.
Hvis du har tilmeldt dig og ikke længere ønsker at være i køberkartoteket, send da en mail til 6000@kokborg.dk.



